本テキストは公開されている資料や開発者様から提供頂いたソースコードを基に@starfieldKtが作成しています。
そのため開発者様が意図していることと異なる部分がある可能性があることをご注意ください。
また、本テキストに関することを開発者様へお問い合わせ頂かないようお願い申し上げます。
その他格子生成ツールについてはこちら
2次元円弧形水路格子生成ツール "2d arc grid generator"
| 項目 | 内容 |
|---|---|
| 名称 |
2d arc grid generator 2次元円弧形水路格子生成ツール |
| 開発者 | 清水康行 |
| 説明 | 円弧形水路生成ツール.水路長は円周の角度で与え,直線の流入部と流出部を加えることが出来る.水路の縦断形は一定勾配,横断形は長方形,内岸固定砂州形,放物線形を選ぶことが出来る. |
概要
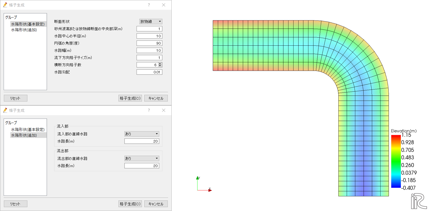
このアルゴリズムでは、半径、角度、水路幅、格子サイズ、勾配(断面形状が固定砂州の場合は砂州波高、放物線の場合は中央部深も必要となる)を与えることにより円弧型の水路の格子を作成することができる。また、追加で流入部及び流出部に直線水路を設定することも可能。
格子生成条件
水路形状(基本設定)
格子生成に必要な基本条件はこちら。

各条件のイメージはこのようになる。

断面形状は平坦、固定砂州、放物線から選択可能でそれぞれ以下のような断面形状となる。

この時、固定砂州での断面形状について横断方向の右岸端からの距離を$x$、地盤高を$y$、水路中央の地盤高を$y_0$、砂州波高を$h$、水路幅を$w$とした場合、断面形は次の数式で示すことができる。
y=y_0+h\cos(\frac{x}{w}\pi)
放物線の場合、$y$を地盤高、水路中央の地盤高を$y_0$、横断方向の水路中心線からの距離を$x$(右岸側を正、左岸側を負とする)、中央部深を$h$、水路幅を$w$とすると断面形は$-\frac{w}{2} \leq x \leq \frac{w}{2}$の範囲での次式で示すことができる。
y=y_0+\frac{4h}{w^2}x^2
水路形状(追加)
追加設定をすることで流入、流出部に直線水路を接続させることも可能。

直線水路のイメージ図はこのようになる。





