1. はじめに
電子工作で、金属製のケースや、金具が必要になることがあります。
「精密板金」を依頼できる工場が手近にあると良いのですが、業務でやっていないと難しいでしょう。
量産前提でない、一見さんが 1 個だけ欲しいような時に話を聞いてくれる工場となると、更に難しくなります。
近年、3D データから製造できることで有名になった meviy があるようです。
個人事業主または法人に限られますが、単品物でも気軽に発注できます。
ですが、3D CAD 習得するのめんどくさーと思って、使った事はありませんでした。
ところが、いつのまにか (昨年から)、2D 図面でも発注できる meviy2D のサービスが始まっていました。
dxf/dwf だけでなく、pdf の図面でも ok ということです。
これなら不器用な私でもなんとかなる!
ということで、さっそく使ってみることにしました。
2. 作るもの
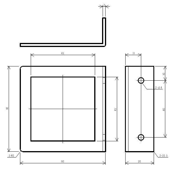
現在、コンベクションオーブンをリフロー炉に改造する作業中です。
温度調節器をコンベクションオーブンと合体させるのに、固定用のブラケットが必要です。
これを作ってもらうことにしました。
2D 図面を、回路図用 OrCAD で作成しました。
1:1 の pdf で出力します。

3. meviy2D に見積依頼
misumi アカウントを作ったら、早速 meviy2D に見積もりを依頼します。
見積条件として、SECC 素材で表面処理・熱処理無し、単品を指示しました。
板厚は、図面中で指示するようです。
送った図面は、寸法指示の文字が小さすぎて、見積もり不可の返事が来ました。
AI が認識できないのか、FAX で送ると潰れてしまうからか😅
発注仕様を確認したところ、
https://jp-2dx.meviy.misumi-ec.com/meviy-guide/ja/customer_manual/2dx_quotation/10113/
が指示されていましたので、文字を大きくして再送しました。
固定フランジ角のC0.5指示をR2に変更しています。
別途見積数量で、10個の場合も聞いてみることにします。
2日後の夕方に、見積結果が届きました。
税別単価で、
1個製作時: 6,340 円
10個製作時: 970 円
でした。
4. 発注と受け取り
見積は 1 個と 10 個でお願いしましたが、1 個だけ発注します。(税込み 6,974円)
5営業日で発送してくれるそうです。
実際のところは、
9/5(木) 発注
9/12(木) 発送 - 川崎
9/14(土) 受取 - 札幌
となりました。
納期見積は実働5日だったので、予定通りの納期で発送されました。
川崎 ⇒ 札幌で輸送に2日かかります。
送料は無料でした。
5. 受け取った現品の確認
こんな感じで出来上がりました。
寸法と仕上げも、満足いくものです。
寸法誤差まで確認していませんが、日本製ですし大丈夫でしょう。
温度調節器が、固定できればよいのです。
顧客は穴を開けたかった!
(あと、曲げも)
6. まとめ
meviy2D で、2D 図面から板金部品を製造することができました。
電子工作で使うようなシートメタルの精密板金全般をカバーでき、塗装も可能なので、カスタムケース作り放題です。
あと、シルク印刷か、インクジェット印刷もサポートしてくれると、更に色々できて楽しそうです。




